新闻  |   论坛  |   博客  |   在线研讨会
消防应急照明和疏散指示系统在某洁净医药的设计与应用-安科瑞潘丽
acr潘 | 2023-05-20 15:35:43    阅读:370   发布文章

【摘要】:A100型消防应急照明和疏散指示系统具有集中控制,灵活度高和可靠性强等特点。系统采用17寸工业平板电脑,采用Windonws7系统,可支持联动报警、系统监控、故障报警、自检、备电、记录存储与查询、导光流、权限控制等多项功能。配合A431H、A603HC系列高防灯具,适用于洁净医药的生产区域需要高防护特点的项目。

【关键词】:集中电源;集中控制;洁净医药生产车间;洁净区、防爆区

医药行业是我国国民经济的重要组成部分,是传统产业和现代产业相结合,一、二、三产业为一体的产业。随着近些年传染疫情的迅猛发展和人们对个人健康的更高需求,生产医药的企业及建筑越来越多。在医药类生产单位,洁净厂房空间密闭,如有火灾发生,热量无处泄漏,室内迅速升温,大大缩短全室各部位材料达到燃点的时间,对应急照明灯具、疏散标志灯具防火要求高。部分生产区域需要满足洁净区、防爆区的使用需求。

如何保证对各应急灯具的实时监控和控制、日常24小时管理维护,保证系统运行正常,在发生火灾时安全、准确、迅速引导人员到达安全区域,减少人员伤亡尤为重要。

本项目是洁净医药研究创新基地,项目位于江苏省镇江市,当地月平均气温31摄氏度,建筑性质为多层工业(厂房)建筑;建筑抗震烈度:7度;甲类生产车间。总建筑面积9552.2平方米,其中连廊178.74平方米,地上四层钢筋混凝土框架建筑。包含综合楼、办公楼、研发中心、制药车间、库房、试验中心等区域。

要求本建筑内应急疏散标志采用集中电源集中控制型系统,当火灾消防或应急发生时,可通建筑内的的手报、烟感等报告具体的火灾位置,并以通信方式将指令传输至本系统的消防主机,以控制建筑内的疏散标志的箭头指向,确保人员沿正确的方向逃生及疏散。

消防应急照明和疏散指示系统

消防应急照明和疏散指示系统由控制器(主机)、集中电源和灯具(疏散指示灯具、应急照明灯具)等几部分组成。此处只介绍主要产品。

通常把应急疏散控制器称为主机,正常状态下主机可以实时监测接入灯具的状态;发生火灾时,主机可以与火灾自动报警控制器进行联动,从数据库中调出针对不同火灾报警点的预案逃生路线,控制不同种类的灯具发出闪烁、开灯、灭灯、改变指示方向,指引人员沿预案逃生路线逃生。

集中电源主要为分配电装置和灯具备用电源的结合,设置在消防控制室内;当发生火灾时在主电切断的情况下为应急疏散照明灯具和疏散指示灯具供电,确保应急照明和疏散指示系统的正常工作。

消防应急照明灯具主要在系统应急时,为人员的疏散提供照明。采用DC36V供电安全可靠,LED灯珠光源功耗低,使用寿命长,控制器可以实时监控灯具状态。

消防应急标志灯主要在系统应急时,为人员的疏散提供方向的指示。采用DC36V供电安全可靠,绿色LED光源节能环保,控制器可对灯具进行方向控制和监控灯具的状态。

A-C-A100控制器技术参数和产品图片如下表1

图片

表1

A-D-0.5KVA-A200FP集中电源技术参数和产品图片如下表2

图片

表2

灯具

当发生火灾时,消防应急标志灯具为人员提供应急疏散的指示方向,左向、右向和双向的标志灯具一般用于指示疏散的走向,无方向的标志灯具一般用于指示安全出口、楼层和避难间。其安装方式为壁挂式。本产品广泛应用于机场、大型商场、写字楼等公共场所安全通道出入口、走廊拐角处。

图片

系统组网图

图片

现场部分系统图

现场设有一台A-C-A100控制器、多台防爆集和高防护的集中电源、多套灯具。本项目采用的方案是,灯具到集中电源通常二总线用法,集中电源到琴台控制器中间用的是CAN总线。

图片

冻干粉车间应急照明平面图

图片

公用工程中心应急照明布置图

系统软件运行界面

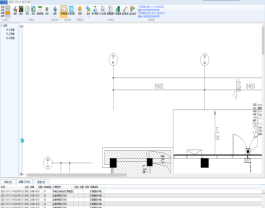
●系统运行主界面

图片

包含工具栏、平面展示、图层列表、状态栏,可以直观的查看监控设备的运行状态,并根据状态栏的现实内容直接切换至故障具体位置。

●灯具配置界面

图片

可以查看所有灯具状态与数量。

●事件记录界面 

图片

可查看历史操作、故障信息,可按日期进行查询。

设备现场应用照片

图片图片图片

随着我国经济的快速发展,科技的进步,建筑智能化及建筑消防安全的重视程度也随之提高,本文分析了我公司生产的A100消防应急照明和疏散指示系统在洁净医药项目中的应用,充分展现了在洁净医药建筑组网中简单、灵活、稳定、低成本的优势。通过消防应急疏散系统能够解决传统消防应急疏散指示系统无集中控制、指示方向固定、疏散线路不能改变、指示效果不理想、安全性能低等问题。

安科瑞电气着力打造各类火灾安防系统的产品,在满足国家行业标准要求的前提下,为各类建筑提供智能、节能、廉价的消防方案与消防产品,为防火减灾、保障人民生命财产安全方面尽一份力!


*博客内容为网友个人发布,仅代表博主个人观点,如有侵权请联系工作人员删除。

参与讨论
登录后参与讨论
推荐文章
最近访客